Casa semindipendente in vendita

Oppeano, Via Cadelferro
€ 170.000
Prezzo aggiornato
4 locali 4 locali
92 Mq 92 Mq
1 bagno 1 bagno

Casa semindipendente in vendita

Oppeano, Via Cadelferro

Descrizione annuncio

COSA SAPERE SULLA CASA

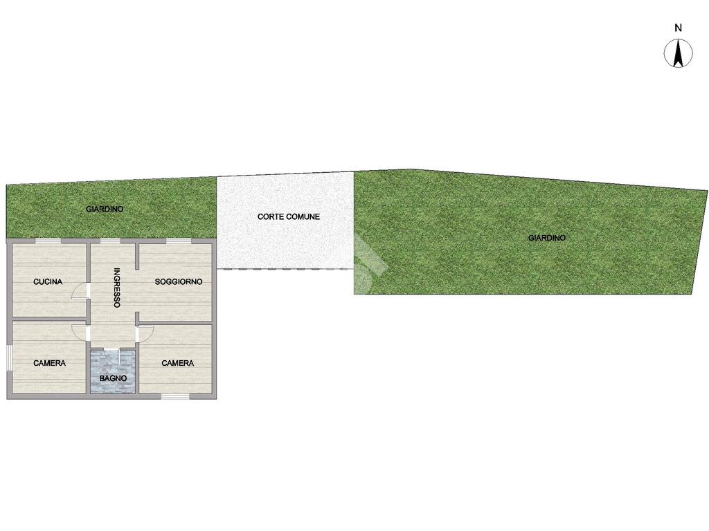
Soggiorno – Cucina – Due camere – Bagno – Garage – Ripostiglio – Magazzino – Giardino

PARTICOLARITA' E DESCRIZIONE

In una zona ben servita, a pochi passi da tutti i principali servizi, proponiamo una casa semindipendente con passaggio promiscuo situata al piano terra e sviluppata interamente su un unico livello, ideale per chi desidera praticità e comfort.

L’ingresso si apre su un locale accogliente che funge da disimpegno e collega in modo armonioso tutte le stanze della casa. La zona giorno si compone di una cucina luminosa e separata dal soggiorno, offrendo così spazi distinti e ben distribuiti.

La zona notte comprende un bagno con box doccia e due camere da letto di generose dimensioni, entrambe caratterizzate da ampie superfici che consentono una facile personalizzazione degli spazi. L’immobile è dotato di riscaldamento autonomo a radiatori, garanzia di una gestione efficiente e indipendente dei consumi.

All’esterno, la proprietà mette a disposizione un garage singolo, oltre a un comodo ripostiglio e un magazzino, utili per organizzare al meglio attrezzature, strumenti e oggetti di uso meno frequente. Completa la soluzione un giardino di pertinenza, ideale per chi desidera uno spazio all’aperto da vivere durante le belle stagioni, per momenti di relax, per chi ha animali domestici o per chi ama dedicarsi al verde.

Questa abitazione rappresenta una soluzione ottimale per chi cerca indipendenza, comodità e spazi funzionali, mantenendo al contempo la vicinanza ai principali servizi e alle comodità quotidiane.

CONTESTO ED UBICAZIONE

L'immobile proposto in vendita è una casa indipendente collocata in una zona comoda a tutti i principali servizi.

Ricordiamo che il comune di Oppeano dispone di tutti i servizi di cui un cittadino necessita, come supermercati, farmacie e banche. Inoltre è collegato dai mezzi pubblici e sulla via principale possiamo trovare bar e negozi di varie attività.

Mostra tutto

Nelle vicinanze

Trasporto pubblico Trasporto pubblico
Isola Rizza Chiesa
Isola Rizza Chiesa
2,1 Km
Isola Rizza
Isola Rizza
2,7 Km
Scuole Scuole
Scuole
440 m
Farmacia Farmacia
Farmacia Dr. Bacchielli
480 m
Supermercati Supermercati
EuroSpin
710 m
Bar Bar
Bar
1,7 Km
Ristoranti Ristoranti
Perbellini
2,3 Km
Trattoria Sartori
2,4 Km
trattoria e vini
2,4 Km
Malaspina
2,7 Km
Mostra tutto

Caratteristiche

Rif.:
61137297
Piano:
Terra di 1
Totale piani:
1
Box:
1
Camere da letto:
2
Arredamento:
Assente
Mostra tutto
Prezzo Prezzo
€ 170.000
Rata mutuo Rata mutuo
€ 801 / mese
Spese annue Spese annue
€ 0
Proponi il tuo prezzoProponi il tuo prezzo

Classe Energetica

F
F
F
F
F
F
F
F
F
EP globale non rinnovabile:
204.30 kW h/m² anno
EP globale rinnovabile:
3.01 kW h/m² anno
EP invernale del fabbricato:
EP estiva del fabbricato:
Anno di costruzione:
1970
Riscaldamento:
Autonomo
Tipo impianto:
A radiatori
Tipo alimentazione:
Metano

Prezzo ridotto di €1 (6%%)

Ti interessa visionare l'immobile?

Fissa un appuntamento  Fissa un appuntamento

Richiedi informazioni

Clicca su Leggi per aprire l'informativa
* Questi campi sono obbligatori

Calcola il tuo mutuo

Semplice e senza impegno
Anticipo

( % )
Mutuo

( % )

pochi semplici passi

inserisci i tuoi dati
Questionario completato
Grazie per aver richiesto un appuntamento senza impegno con un nostro Consulente del Credito e Assicurativo.

Hai inserito correttamente tutti i dati necessari e a breve riceverai una e-mail con un link da convalidare per inviare i tuoi dati.
Affiliato
Studio Verona Est Sas
Via XXVI Aprile, 22 37050 Oppeano (VR)

Il nostro staff


  • Alessio Contado
    Collaboratore

  • Alessandro Gomitolo
    Collaboratore

  • Laura Alleva
    Collaboratrice

  • Giada Lovato
    Coordinatrice

  • Salvatore Cruceli
    Affiliato
Via XXVI Aprile, 22 37050 Oppeano (VR)
Zona: Oppeano
Mostra su mappa
Orari: lunedì 09–12:30, 15:00 –19:30 martedì09–12:30, 15:00 –19:30 mercoledì09–12:30, 15:00 –19:30 giovedì09–12:30, 15:00 –19:30 venerdì09–12:30, 15:00 –19:30 sabato 09–12:30 domenicaChiuso
Affiliato
Studio Verona Est Sas
Via XXVI Aprile, 22 37050 Oppeano (VR)

2026 Tecnocasa Franchising S.p.A. - P. IVA 08365160152 - Via Monte Bianco 60/A 20089 Rozzano (MI). Ogni agenzia ha un proprio titolare ed è autonoma. Privacy policy | Policy utilizzo | Cookie policy